Finished Projects

Springfield, MO – 2718 N Kansas Expy

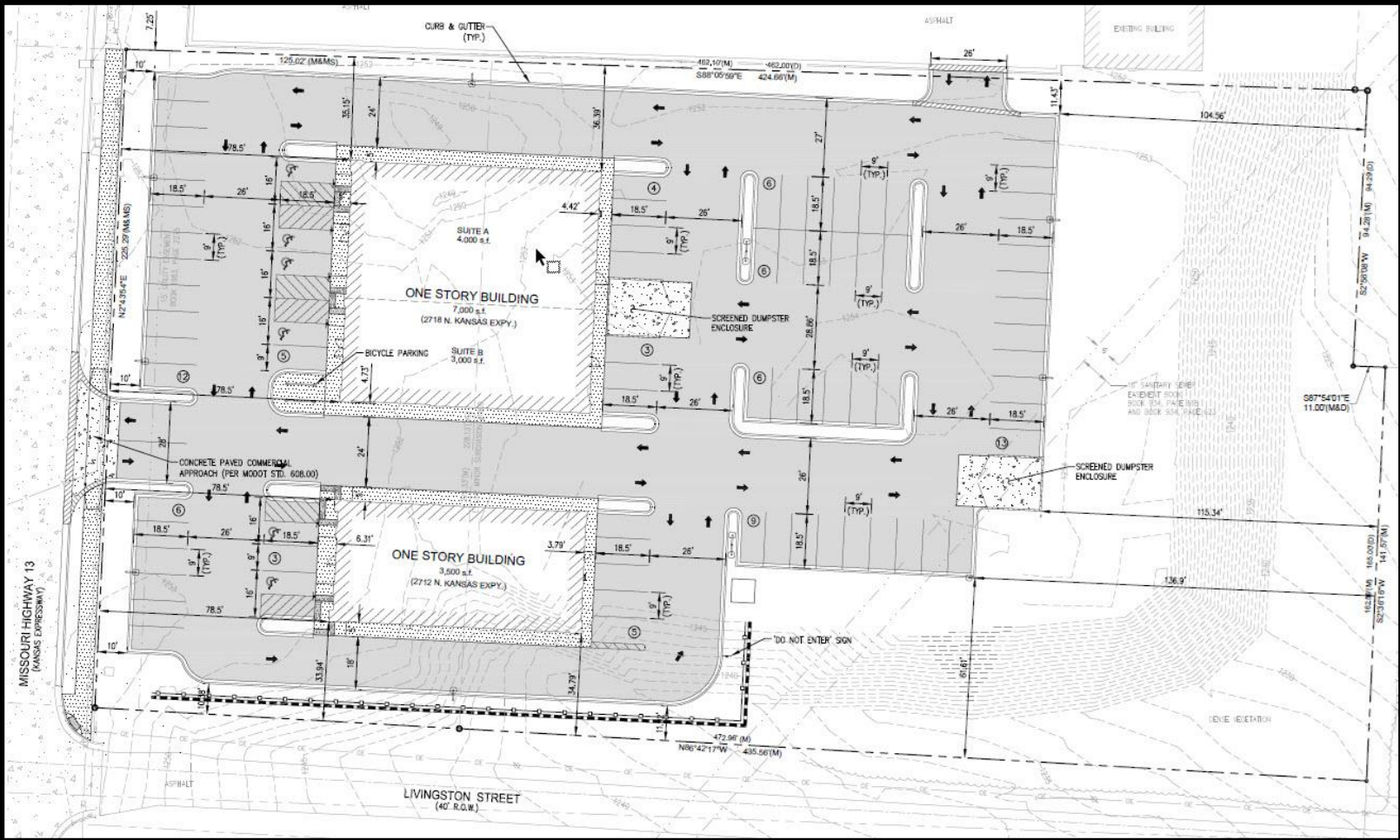
Springfield, MO – 2718 N Kansas Expy – New retail building 100% leased to Mattress Firm, Aspen Dental, Metro PCS, and  Wingstop.   The project is two buildings totaling 10,500 square feet across from Walmart. 

Site Plan
Aerial